Термин "Чистая продажа" означает, что в квартире никто не прописан или
есть куда выписаться и вывезти вещи. Это лучший вариант для покупателя.
Вероятность срыва сделки минимальна.
Код объекта: 1568638. Квартира с дизайнерским ремонтом и функциональной планировкой для ценителей эстетики и уюта!
Предлагаем Вашему вниманию 3-х комнатную квартиру-распашонку в городе Королев, по адресу: Бурковский проезд, дом 38, корпус 2, в ЖК ''Театральный Парк''. Квартира расположена на 4 этаже 4-этажного монолитно-кирпичного дома (мансарда).
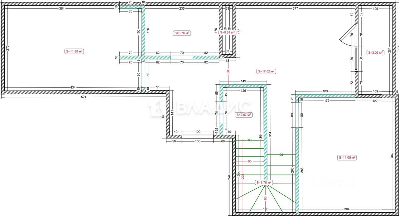
Общая площадь 73 метров (с учетом площади лоджии 3 метра и 2-го уровня 18,3 метров). Функциональная кухня-столовая 11 метров, светлая спальня на 1 уровне 11 метров, гостиная 11 метров, совмещенный санузел, гардеробная комната, на втором уровне - 18,5 функциональная мастер спальня со своим санузлом, с рабочей зоной и зоной под систему хранения.
Код объекта: 1568638. Квартира с дизайнерским ремонтом и функциональной планировкой для ценителей эстетики и уюта!
Предлагаем Вашему вниманию 3-х комнатную квартиру-распашонку в городе Королев, по адресу: Бурковский проезд, дом 38, корпус 2, в ЖК ''Театральный Парк''. Квартира расположена на 4 этаже 4-этажного монолитно-кирпичного дома (мансарда).
Общая площадь 73 метров (с учетом площади лоджии 3 метра и 2-го уровня 18,3 метров). Функциональная кухня-столовая 11 метров, светлая спальня на 1 уровне 11 метров, гостиная 11 метров, совмещенный санузел, гардеробная комната, на втором уровне - 18,5 функциональная мастер спальня со своим санузлом, с рабочей зоной и зоной под систему хранения.
В квартире сделан дизайнерский ремонт с использованием качественных материалов: на полу ламинат и плитка, санузы в плитке, современные смесители, тропический душ, инсталляция, окна ПВХ, входная дверь с шумоизоляцией, система ''теплых'' полов и утепленная лоджия с освещением.
Это эксклюзивное предложение подходит как для личного проживания, так и для сдачи в найм (аренду) для одного, семейной пары или семьи с детьми.
Европейский колорит в сочетании уюта и тишины, свежий воздух, река Клязьма, пруд Рыбхоз и заповедный парк ''Лосиный остров'' — это место поистине не оставит никого равнодушным!
Уникальное расположение ЖК позволяет жителям получать доступ как к городским инфраструктурам мегаполиса, так и к загородным прелестям городского округа. Вся необходимая инфраструктура в шаговой доступности: школа, Российская гимназия прямо в ЖК, детский сад, стадион, парки, аптеки, банки, сетевые магазины.
Пешком 11 минут до ж/д станции ''Валентиновка'', электричка до Ярославского вокзала, до станции метро ''Комсомольская'' - 45 минут без пробок. До станции метро ''ВДНХ'' на машине 30 минут, до ''Медведково'' и ''Щелковская'' - 23 минуты, ''Свиблово'' - 35 минут, до МЦК ''Ростокино'' - 31 минута.
Один взрослый собственник. Прямая продажа, оперативный выход на сделку. Подходит под ипотеку, помощь в одобрении от УЧАСТКОВЫЙ РИЭЛТОР и ТСННЕДВИЖИМОСТЬ. Безопасность сделки обеспечена стандартами работы Гильдии Риэлторов Московской Области (ГРМО).
Спешите первыми получить дополнительные скидки и преференции!