Если цена в объявлении изменится, мы сразу сообщим вам об этом на электронную почту.
Нажимая «Подписаться», вы соглашаетесь с правилами.
продам 3-к, 50-летия ВЛКСМ, 5/167 700 000 ₽
29 мая 2025
Дата публикации объявления
Обн. 9 окт
Дата обновления объявления
6
Количество просмотров (+ просмотры за сегодня)
127 907 ₽/м²
Чистая продажа
Термин "Чистая продажа" означает, что в квартире никто не прописан или
есть куда выписаться и вывезти вещи. Это лучший вариант для покупателя.
Вероятность срыва сделки минимальна.
ВНЕСЕН АВАНС Продается трехкомнатная квартира в благоустроенном районе города Королев.
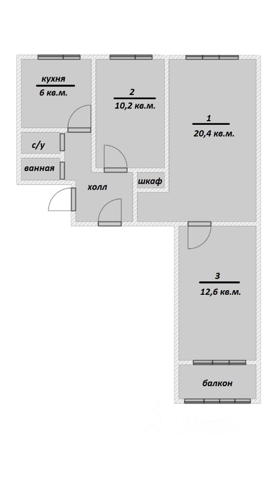
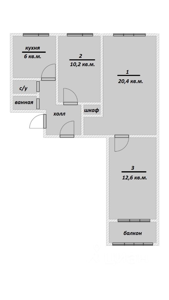
Квартира светлая, с хорошей планировкой, общей площадью 60,2кв.м (58,2 кв.м без учета лоджии). В квартире три комнаты: 10.2 кв.м, 12.4 кв.м и 20.4 кв.м, что позволит комфортно разместиться всей семье. Кухня 6 кв.м. Санузел раздельный, остекленная лоджия.
Окна выходят в тихий, зеленый двор, обеспечивая спокойствие и уединение.
Район с развитой инфраструктурой: в непосредственной близости расположены школы, детские сады, поликлиника, разнообразные магазины, фитнес-клуб World Class, ЗАГС, пункты выдачи интернет-заказов, кафе и рестораны.
Удобная транспортная доступность: до станции метро ''Медведково'' можно быстро добраться на автомобиле - всего 24 минуты.
ВНЕСЕН АВАНС Продается трехкомнатная квартира в благоустроенном районе города Королев.
Квартира светлая, с хорошей планировкой, общей площадью 60,2кв.м (58,2 кв.м без учета лоджии). В квартире три комнаты: 10.2 кв.м, 12.4 кв.м и 20.4 кв.м, что позволит комфортно разместиться всей семье. Кухня 6 кв.м. Санузел раздельный, остекленная лоджия.
Окна выходят в тихий, зеленый двор, обеспечивая спокойствие и уединение.
Район с развитой инфраструктурой: в непосредственной близости расположены школы, детские сады, поликлиника, разнообразные магазины, фитнес-клуб World Class, ЗАГС, пункты выдачи интернет-заказов, кафе и рестораны.
Удобная транспортная доступность: до станции метро ''Медведково'' можно быстро добраться на автомобиле - всего 24 минуты.