Если цена в объявлении изменится, мы сразу сообщим вам об этом на электронную почту.
Нажимая «Подписаться», вы соглашаетесь с правилами.
продам 3-к, Советская, 66 350 000 ₽
27 июня 2025
Дата публикации объявления
Обн. 28 июня 2025
Дата обновления объявления
2
Количество просмотров (+ просмотры за сегодня)
93 245 ₽/м²
Чистая продажа
Термин "Чистая продажа" означает, что в квартире никто не прописан или
есть куда выписаться и вывезти вещи. Это лучший вариант для покупателя.
Вероятность срыва сделки минимальна.
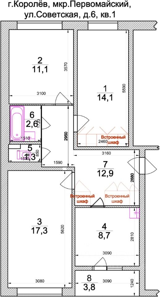
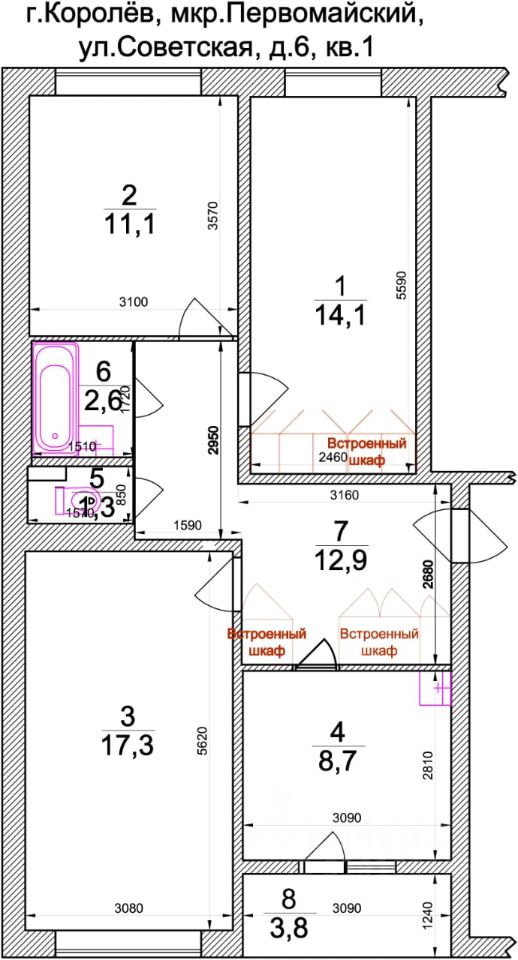
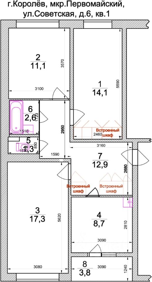
3-комнатная КВАРТИРА с ИЗОЛИРОВАННЫМИ КОМНАТАМИ! Адрес: г. Королёв, мкр. Первомайский, ул. СОВЕТСКАЯ, д. 6 (1 этаж из 5, панельный дом). О квартире: • Общая площадь — 68,1 кв.м. + балкон застекленный. Комнаты 17,3 + 14,1 + 11,0 кв.м. • Кухня 8,7 м², раздельный санузел, окна деревянные. • Состояние в квартире среднее - жилое! • Мебель остается частично по желанию покупателя. Кухонный гарнитур + холодильник. • Без перепланировок и юридических обременений. • Доброжелательные соседи, зеленый двор, всегда есть места для парковки детская площадка во дворе. Инфраструктура рядом: ВСЕ В ШАГОВОЙ ДОСТУПНОСТИ! • Школа 2 — 3 минут пешком, 2 детские садика несколько минут пешком.
3-комнатная КВАРТИРА с ИЗОЛИРОВАННЫМИ КОМНАТАМИ! Адрес: г. Королёв, мкр. Первомайский, ул. СОВЕТСКАЯ, д. 6 (1 этаж из 5, панельный дом). О квартире: • Общая площадь — 68,1 кв.м. + балкон застекленный. Комнаты 17,3 + 14,1 + 11,0 кв.м. • Кухня 8,7 м², раздельный санузел, окна деревянные. • Состояние в квартире среднее - жилое! • Мебель остается частично по желанию покупателя. Кухонный гарнитур + холодильник. • Без перепланировок и юридических обременений. • Доброжелательные соседи, зеленый двор, всегда есть места для парковки детская площадка во дворе. Инфраструктура рядом: ВСЕ В ШАГОВОЙ ДОСТУПНОСТИ! • Школа 2 — 3 минут пешком, 2 детские садика несколько минут пешком. Транспортная доступность: • Ж/д станция Фабрика 1 мая — 10 минут пешком, до Москвы — 40 мин. От ЖД ст. Болшево Спутник идет до Москвы 25мин. Юридические аспекты: • Основание права — ДДУ (наследство от матери дочери). Более 3 лет. • Полная стоимость указана в ДКП (договоре купли-продажи). • Подходит для ипотеки. • 1 собственник, СВОБОДНАЯ ПРОДАЖА!