Если цена в объявлении изменится, мы сразу сообщим вам об этом на электронную почту.
Нажимая «Подписаться», вы соглашаетесь с правилами.
продам 3-к, Королева проспект, 248 650 000 ₽
27 июня 2025
Дата публикации объявления
Обн. 11 ноя
Дата обновления объявления
4
Количество просмотров (+ просмотры за сегодня)
136 867 ₽/м²
Чистая продажа
Термин "Чистая продажа" означает, что в квартире никто не прописан или
есть куда выписаться и вывезти вещи. Это лучший вариант для покупателя.
Вероятность срыва сделки минимальна.
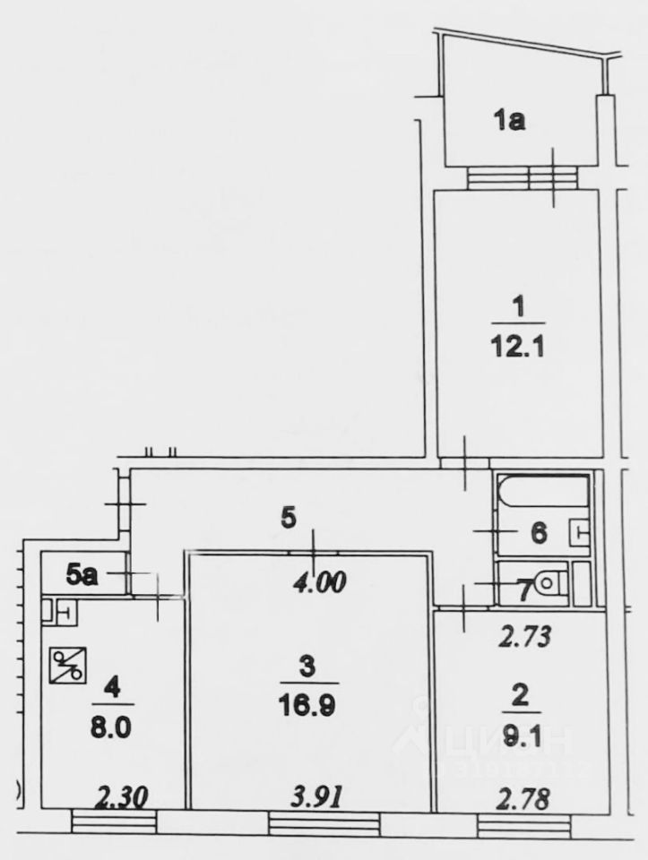
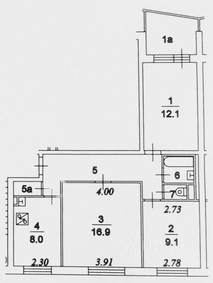
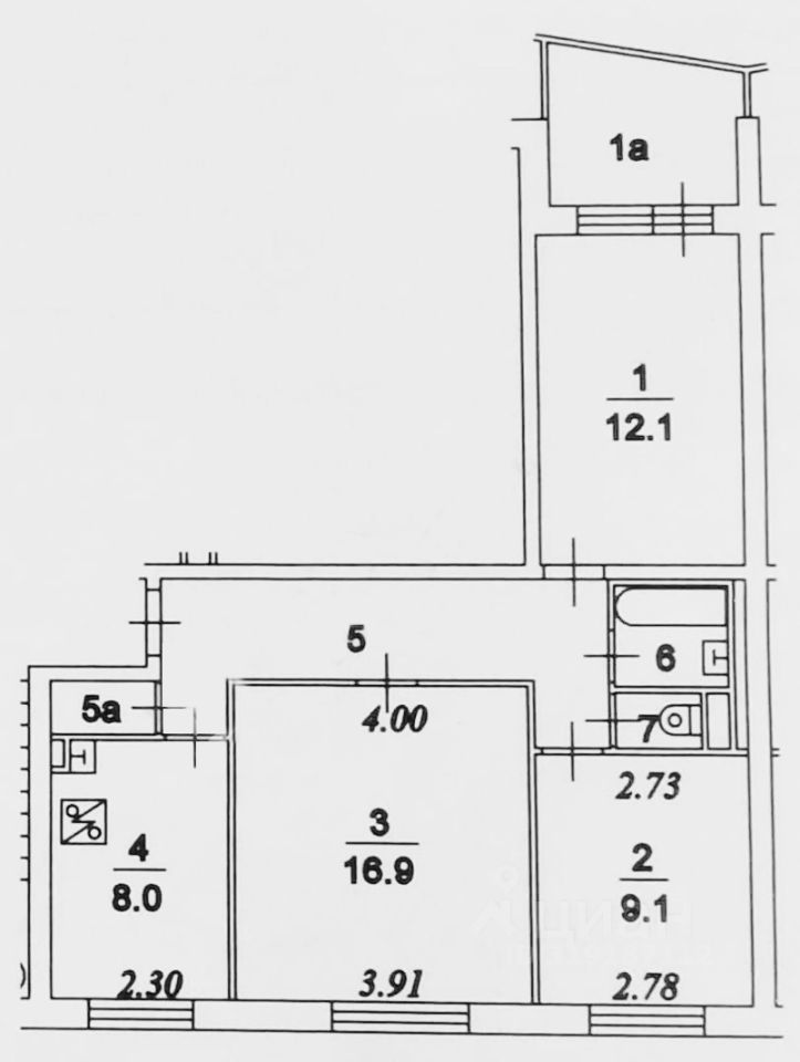
Предлагается к продаже уютная, просторная трехкомнатная квартира в центре города Королёва, Московской области, по адресу проспект Королёва, 24. Квартира расположена на 4 этаже 9-этажного панельного дома 1977 года постройки. Общая площадь — 63,2 кв. м., жилая площадь — 38,8 кв. м, а площадь кухни — 8 кв. м.
Планировка удобная, комнаты светлые и просторные, окна выходят во двор. Санузел раздельный, большая лоджия 6 кВ.м., которую можно использовать как кабинет или зимний сад, есть кладовка. На кухне достаточно места для всей необходимой техники и обеденной зоны.
Дом в хорошем состоянии, оборудован пассажирским лифтом и мусоропроводом. Подъезд чистый безо всяких посторонних запахов. Во дворе есть парковочные места, поэтому можно без проблем припарковать автомобиль.
Предлагается к продаже уютная, просторная трехкомнатная квартира в центре города Королёва, Московской области, по адресу проспект Королёва, 24. Квартира расположена на 4 этаже 9-этажного панельного дома 1977 года постройки. Общая площадь — 63,2 кв. м., жилая площадь — 38,8 кв. м, а площадь кухни — 8 кв. м.
Планировка удобная, комнаты светлые и просторные, окна выходят во двор. Санузел раздельный, большая лоджия 6 кВ.м., которую можно использовать как кабинет или зимний сад, есть кладовка. На кухне достаточно места для всей необходимой техники и обеденной зоны.
Дом в хорошем состоянии, оборудован пассажирским лифтом и мусоропроводом. Подъезд чистый безо всяких посторонних запахов. Во дворе есть парковочные места, поэтому можно без проблем припарковать автомобиль. Двор ухоженный, с зелеными насаждениями с детской и спортивной площадками, что особенно важно для семей с детьми.
В шаговой доступности находятся детские сады, школы, лицеи и гимназии, медицинские учреждения, спортивные комплексы, магазины, гипермаркет Глобус и другие торговые центры, что делает проживание здесь максимально комфортным. До ж/д ст. Болшево 5 минут пешком, до метро Ростокино 20 мин. До метро ВДНХ 25 минут автобусом, остановка рядом с домом. До метро Медведково можно добраться на автомобиле всего за 24 минуты. поэтому транспортная доступность — одно из преимуществ этого района.
Квартира готова к продаже, документы в полном порядке, юридически и физически свободна. 1 взрослый собственник. Возможна сделка с использованием ипотеки. Звоните, чтобы договориться о просмотре. Мы будем рады показать вам эту замечательную квартиру и ответить на все интересующие вопросы. Не упустите шанс стать владельцем этого уютного жилья!