Если цена в объявлении изменится, мы сразу сообщим вам об этом на электронную почту.
Нажимая «Подписаться», вы соглашаетесь с правилами.
продам 1-к, Пионерская, 13 корп. 57 200 000 ₽
4 авг
Дата публикации объявления
Обн. 4 окт
Дата обновления объявления
5
Количество просмотров (+ просмотры за сегодня)
240 000 ₽/м²
Чистая продажа
Термин "Чистая продажа" означает, что в квартире никто не прописан или
есть куда выписаться и вывезти вещи. Это лучший вариант для покупателя.
Вероятность срыва сделки минимальна.
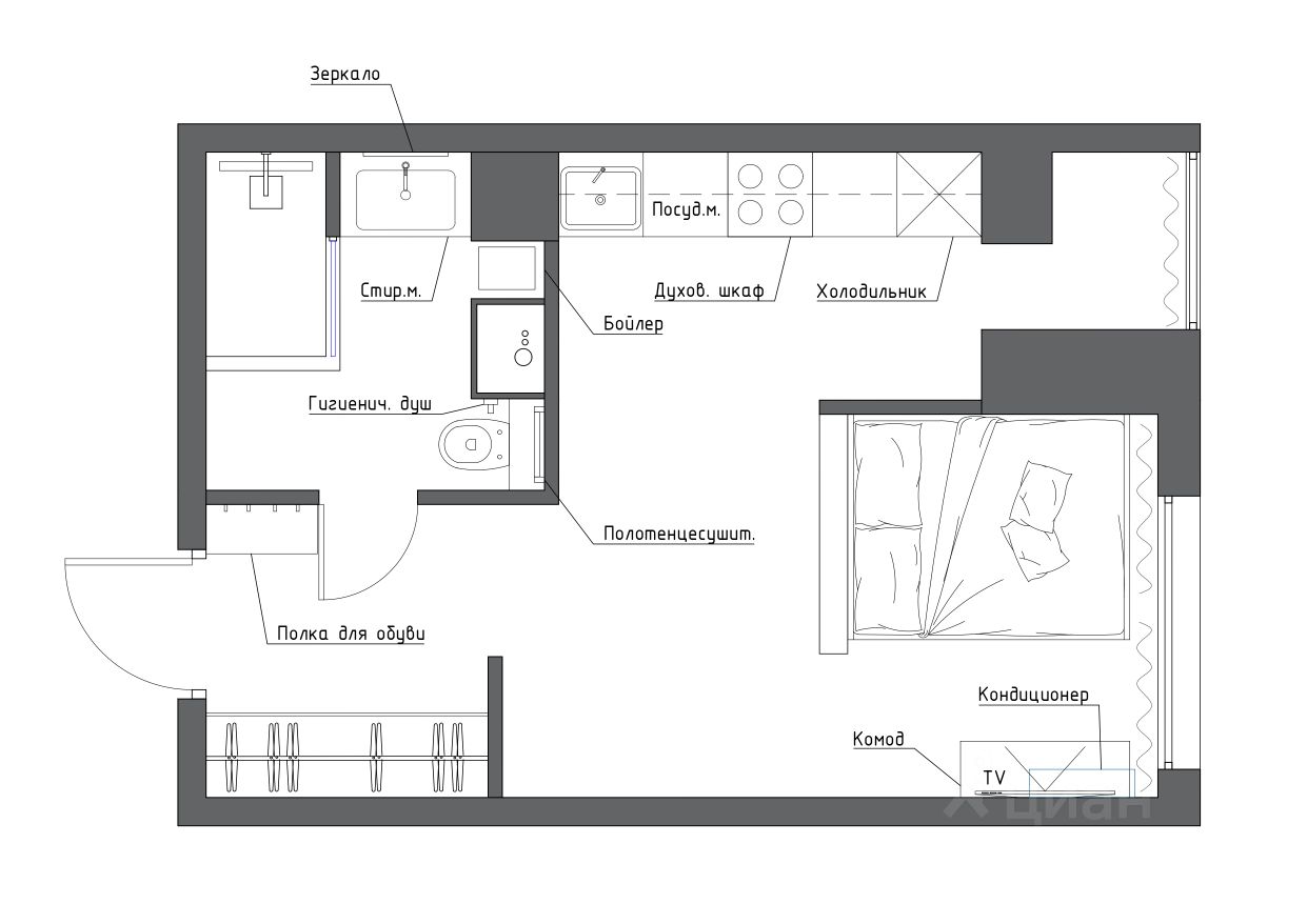
ДИЗАЙНЕРСКАЯ СТУДИЯ В ПРЕСТИЖНОМ ЖК ЗОЛОТЫЕ ВОРОТА! г. Королёв, ул. Пионерская, д. 13, корп. 5. КВАРТИРА расположена на комфортном 7-м этаже, всего в доме 25 эт. Общая площадь 27,2 кв.м., а с учётом теплой лоджии 30 кв.м.!
ДИЗАЙНЕРСКАЯ СТУДИЯ В ПРЕСТИЖНОМ ЖК ЗОЛОТЫЕ ВОРОТА! г. Королёв, ул. Пионерская, д. 13, корп. 5. КВАРТИРА расположена на комфортном 7-м этаже, всего в доме 25 эт. Общая площадь 27,2 кв.м., а с учётом теплой лоджии 30 кв.м.! В квартире выполнена функциональная планировка и дизайнерская отделка: - в прихожей обустроен глубокий гардероб до потолка для хранения вещей, плюс открытые полки и крючки, - далее место для уютного кресла с торшером, - зона спальни выделена небольшой перегородкой, установлена двуспальная кровать, комод, кондиционер, телевизор с Wi-Fi, - встроенный кухонный гарнитур Зов, техника ведущих брендов (LG, BOSCH, Gorenje, Samsung) европейская сборка (холодильник, варочная поверхность, вытяжка, духовой шкаф, посудомоечная машина), - в площади лоджии обустроено удобное рабочее место, остекление заменено на панорамные тёплые двухкамерные стеклопакеты, с соблюдением требования по соответствию фасаду дома, тёплый пол, - в совмещённом санузле душевая зона с многофункциональным смесителем, стиральная машина, подвесной унитаз, накопительный водонагреватель (бойлер), что гораздо удобнее и безопаснее проточных нагревателей, тёплый пол! Вся встроенная мебель и техника остаются! Квартира готова к проживанию! ДОМ 2021 года, с ПОДЗЕМНЫМ ПАРКИНГОМ. В доме круглосуточно консьерж, видеонаблюдение. Три лифта! Во дворе современные детские и спортивные площадки. ИНФРАСТРУКТУРА очень разнообразна: два ТЦ, фитнес-центр с бассейнами, сетевые продуктовые, кафе и рестораны, в шаговой доступности несколько детских садов, три школы, и многое другое. Недалеко городской парк. ТРАНСПОРТ: быстрый выезд на Ярославское шоссе, соответственно комфортное вечернее возвращение домой! Рядом остановка маршрута до м. ВДНХ (25 мин в пути). Шаговая доступность до ж/д ст. Подлипки-Дачные. УСЛОВИЯ: один взрослый собственник, основание ДДУ (без ипотеки и мат. кап.), прямая продажа. Полная стоимость в ДКП!