Если цена в объявлении изменится, мы сразу сообщим вам об этом на электронную почту.
Нажимая «Подписаться», вы соглашаетесь с правилами.
продам 3-к, Пионерская, 30 корп. 721 700 000 ₽
11 авг 2025
Дата публикации объявления
Обн. 24 сен
Дата обновления объявления
1
Количество просмотров (+ просмотры за сегодня)
226 750 ₽/м²
Чистая продажа
Термин "Чистая продажа" означает, что в квартире никто не прописан или
есть куда выписаться и вывезти вещи. Это лучший вариант для покупателя.
Вероятность срыва сделки минимальна.
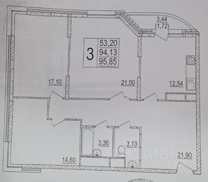
Продам большую уютную и светлую 3-х квартиру в монолитном доме 2019 года постройки на 12/25-этажного дома. Квартира находится по адресу: г. Королев, ул. Пионерская 30 к 7. Общая площадь с лоджией 95,85 кв.м, общая жилая площадь -53,20 кв.м, жилые изолированные комнаты: 21,50 кв.м,/17,10 кв.м./14,60 кухня 13 кв.м с застекленной лоджией, большой практичный холл и отдельная гардеробная, санузел раздельный.
Продам большую уютную и светлую 3-х квартиру в монолитном доме 2019 года постройки на 12/25-этажного дома. Квартира находится по адресу: г. Королев, ул. Пионерская 30 к 7. Общая площадь с лоджией 95,85 кв.м, общая жилая площадь -53,20 кв.м, жилые изолированные комнаты: 21,50 кв.м,/17,10 кв.м./14,60 кухня 13 кв.м с застекленной лоджией, большой практичный холл и отдельная гардеробная, санузел раздельный. В квартире сделан качественный ремонт: электрика собрана ГОСТ кабелем на диффавтоматах АВВ, установлены биметаллические радиаторы отопления Rifar Supremo, на водоснабжение установлены аквастопы c кранами Bugatti, бойлер Electrolux на 70литров, сделана шумоизоляция потолка и стен в спальнях, дорогой натяжной тканевый потолок desсor, плитка в санузлах керама марацци, ванная Roca(чугунная, Испания) Остаётся встроенная кухня. Вся инфраструктура в шаговой доступности: лицей, два детских сада, детские клубы, медицинская клиника Андреевские больницы, аптеки, магазины продуктов, кофейни, салоны красоты и тд. В пяти минутах ходьбы расположен национальный парк Лосиный остров. Рядом остановка общественного транспорта, фитнес-центры, бассейн, стадион, кинотеатр, парк, сетевые магазины, торговые центры, банки. До Москвы можно добраться за 30 минут ( автобусы социальные и маршрутные такси) от ЖД. Станции Подлипки -дачные до 3-х вокзалов Ярославский, Казанский, Ленинградский 28 минут на Спутнике. 1 взрослый собственник, более 5 лет в собственности, свободная продажа.
Рассматриваем обмен на 1 комнатную квартиру в новом доме с Вашей доплатой.