Если цена в объявлении изменится, мы сразу сообщим вам об этом на электронную почту.
Нажимая «Подписаться», вы соглашаетесь с правилами.
продам дом, Садовая25 000 000 ₽
1 окт
Дата публикации объявления
Обн. сегодня
Дата обновления объявления
2
Количество просмотров (+ просмотры за сегодня)
172 414 ₽/м²
Чистая продажа
Термин "Чистая продажа" означает, что в квартире никто не прописан или
есть куда выписаться и вывезти вещи. Это лучший вариант для покупателя.
Вероятность срыва сделки минимальна.
Этажей2
Площадь участка4,5 соток
Общая площадь145 м2
ЭлектричествоЕсть
Газоснабжениецентральное
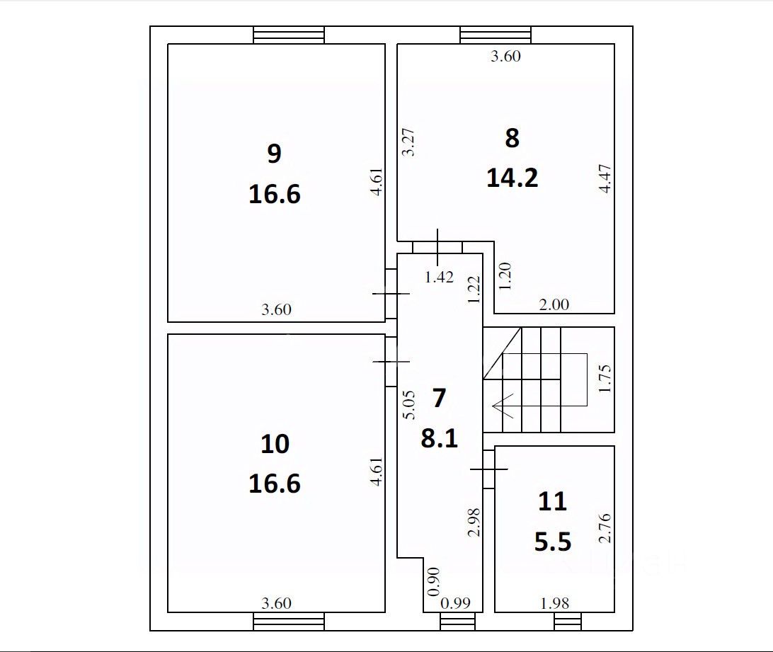
Код объекта: 1815216. СОВРЕМЕННЫЙ ДОМ В ЧЕРТЕ ГОРОДА КОРОЛЕВ В ОКРУЖЕНИИ ЛЕСА ПО ЦЕНЕ КВАРТИРЫ !!! ГАЗ !!! ДОМ ОТ ЗАСТРОЙЩИКА ПО СЕМЕЙНОЙ ИПОТЕКЕ 6%!!! Продаeтся новый дом 145 метров на участке земли 4,5 сотки по адресу город Королев, ул. Садовая. Дом 2-этажный, из газоблока со всеми коммуникациями. Дом в стадии застройки- есть возможность внести свои пожелания в планировку.
Общая площадь дома: 145 метров. Планировка современная и функциональная: 1 этаж: тамбур, холл, кабинет 9,3 метров, кухня-гостиная 34 метра с выходом на веранду, санузел, бойлерная. 2 этаж: 3 комнаты две по 17 метров и мастер-спальня 14 метров с гардеробной, просторный санузел.
Будущий владелец может сразу заехать и жить. ПВХ окна с двойным стеклопакетом.
Код объекта: 1815216. СОВРЕМЕННЫЙ ДОМ В ЧЕРТЕ ГОРОДА КОРОЛЕВ В ОКРУЖЕНИИ ЛЕСА ПО ЦЕНЕ КВАРТИРЫ !!! ГАЗ !!! ДОМ ОТ ЗАСТРОЙЩИКА ПО СЕМЕЙНОЙ ИПОТЕКЕ 6%!!! Продаeтся новый дом 145 метров на участке земли 4,5 сотки по адресу город Королев, ул. Садовая. Дом 2-этажный, из газоблока со всеми коммуникациями. Дом в стадии застройки- есть возможность внести свои пожелания в планировку.
Общая площадь дома: 145 метров. Планировка современная и функциональная: 1 этаж: тамбур, холл, кабинет 9,3 метров, кухня-гостиная 34 метра с выходом на веранду, санузел, бойлерная. 2 этаж: 3 комнаты две по 17 метров и мастер-спальня 14 метров с гардеробной, просторный санузел.
Будущий владелец может сразу заехать и жить. ПВХ окна с двойным стеклопакетом. На полу плитка и ламинат, стены подготовлены под поклейку обоев. Санузлы также отделаны плиткой, натяжные потолки. В бойлерной установлен котел и насосная станция с фильтром. Система отопления разведена по всему дому. Теплые полы проведены по всему первому этажу. Вся электрика проведена и розетки выведены. Металлическая дверь с отсекателем холода. Деревянная лестница. Крыша покрыта натуральной металлочерепицей и утеплена, оснащена снегозадержателями и ливневой системой. Въезд для авто. Откатные ворота.
Все коммуникации: электричество, скважина на воду, магистральный газ, септик проведены в дом. Отопление разведено по дому и подключено к газовому котлу.
Участок 4,5 сотки сухой и ровный. На участке предусмотрена парковка для авто. Дороги асфальт, уличное освещение. Сетевые магазины, школы, детский сад, вся инфраструктура в шаговой доступности. Хорошая транспортная доступность, удобный выезд на Ярославское шоссе и до ж/д станций электричек до Ярославского вокзала.
Помощь в одобрении ипотеки, подходит под семейную, IT ипотеку со сниженной ставкой 6%. Звоните, уважаемые коллеги и покупатели, организуем оперативный показ!