Если цена в объявлении изменится, мы сразу сообщим вам об этом на электронную почту.
Нажимая «Подписаться», вы соглашаетесь с правилами.
продам 5-к, Королева проспект, 3г30 000 000 ₽
28 окт
Дата публикации объявления
Обн. 28 окт
Дата обновления объявления
2
Количество просмотров (+ просмотры за сегодня)
205 620 ₽/м²
Чистая продажа
Термин "Чистая продажа" означает, что в квартире никто не прописан или
есть куда выписаться и вывезти вещи. Это лучший вариант для покупателя.
Вероятность срыва сделки минимальна.
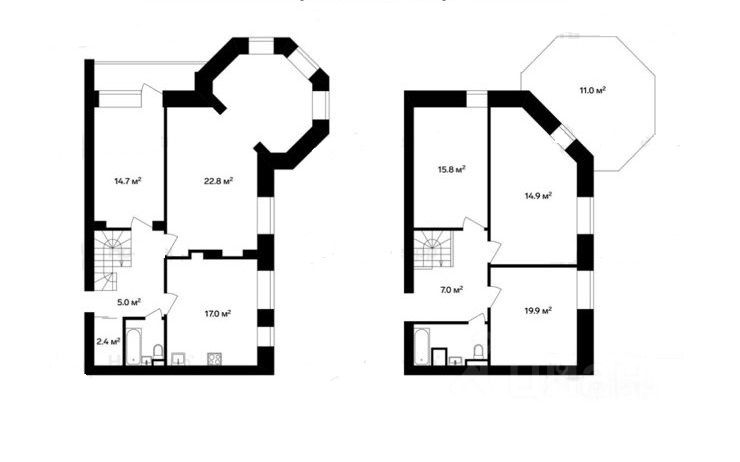
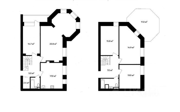
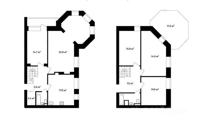
Продaется эксклюзивная просторная 2-уровневая 6-комнатная квартира, расположенная на верхних 9-м и 10-м этажах в одном из самых лучших домов в городе: на проспекте Королева 3Г. Этот вариант превосходное сочетание комфорта, функциональности и выгодного расположения. Основные преимущества квартиры: * Качественный ремонт: в квартире выполнен современный ремонт с использованием качественных импортных материалов, который позволяет сразу заехать и жить. * Особое внимание на себя обращает стильная просторная столовая+гостиная. * Кухня оснащена всей необходимой мебелью и бытовой техникой. * Удобная планировка: четыре изолированные спальни укомплектованы всей необходимой мебелью. * Два просторных санузла — по одному на каждом уровне, все продумано до мелочей.
Продaется эксклюзивная просторная 2-уровневая 6-комнатная квартира, расположенная на верхних 9-м и 10-м этажах в одном из самых лучших домов в городе: на проспекте Королева 3Г. Этот вариант превосходное сочетание комфорта, функциональности и выгодного расположения. Основные преимущества квартиры: * Качественный ремонт: в квартире выполнен современный ремонт с использованием качественных импортных материалов, который позволяет сразу заехать и жить. * Особое внимание на себя обращает стильная просторная столовая+гостиная. * Кухня оснащена всей необходимой мебелью и бытовой техникой. * Удобная планировка: четыре изолированные спальни укомплектованы всей необходимой мебелью. * Два просторных санузла — по одному на каждом уровне, все продумано до мелочей. * Прекрасная шумоизоляция: гарантирует тишину и спокойствие даже в центре города. * В квартире имеется удобная гардеробная. * Большие просторные окна наполняют комнаты естественным светом, создавая атмосферу уюта и тепла. * Достойная входная группа, холл, лифтовая площадка * Своя обслуживающая компания. * Парковка: во дворе большая парковка, где всегда найдется место для вашего автомобиля. * Благоустроенный зеленый двор: детские и спортивные площадки, палисадники и зоны отдыха для всей семьи. Инфраструктура и перспективы района: * Район с отличной инфраструктурой: супермаркеты, школы, детские сады, поликлиники, фитнес-центры. * В шаговой доступности парки, торговые и развлекательные центры. * Дополнительная информация: * Один взрослый собственник, долгов и обременений нет. Снятие двоих зарегистрированных будет до сделки.
Эта квартира — уникальная возможность приобрести комфортное жилье в развивающемся районе Москвы с отличной транспортной доступностью и развитой инфраструктурой. Звоните сейчас, чтобы организовать просмотр.