Если цена в объявлении изменится, мы сразу сообщим вам об этом на электронную почту.
Нажимая «Подписаться», вы соглашаетесь с правилами.
продам 2-к, Циолковского, 23а10 300 000 ₽
29 ноя
Дата публикации объявления
Обн. 21 янв
Дата обновления объявления
2
Количество просмотров (+ просмотры за сегодня)
219 149 ₽/м²
Чистая продажа
Термин "Чистая продажа" означает, что в квартире никто не прописан или
есть куда выписаться и вывезти вещи. Это лучший вариант для покупателя.
Вероятность срыва сделки минимальна.
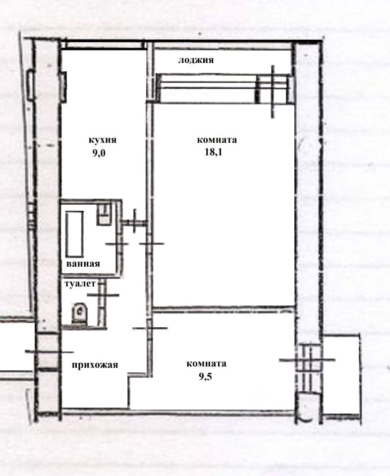
Предлагается к покупке уютная двухкомнатная квартира с отличным ремонтом! Расположенная на шестом этаже девятиэтажного кирпичного дома 1969 года постройки, эта квартира станет идеальным выбором для тех, кто ценит комфорт и функциональность. Общая площадь квартиры составляет 47 квадратных метров, из которых 27,6 кв.м. приходится на жилую зону, разделенную на две изолированные комнаты (18,1 кв.м. и 9,5 кв.м.). Просторная кухня площадью 9 кв.м. позволит с удовольствием готовить любимые блюда. В квартире выполнен качественный ремонт с полной заменой всех коммуникаций: электропроводки, сантехники и труб, произведена гидроизоляция пола. Потолки, стены и полы идеально выровнены, что создает ощущение завершенности и аккуратности. Санузел раздельный, что добавляет удобства.
Предлагается к покупке уютная двухкомнатная квартира с отличным ремонтом! Расположенная на шестом этаже девятиэтажного кирпичного дома 1969 года постройки, эта квартира станет идеальным выбором для тех, кто ценит комфорт и функциональность. Общая площадь квартиры составляет 47 квадратных метров, из которых 27,6 кв.м. приходится на жилую зону, разделенную на две изолированные комнаты (18,1 кв.м. и 9,5 кв.м.). Просторная кухня площадью 9 кв.м. позволит с удовольствием готовить любимые блюда. В квартире выполнен качественный ремонт с полной заменой всех коммуникаций: электропроводки, сантехники и труб, произведена гидроизоляция пола. Потолки, стены и полы идеально выровнены, что создает ощущение завершенности и аккуратности. Санузел раздельный, что добавляет удобства. Из большой комнаты имеется выход на застекленную лоджию, где можно наслаждаться утренним кофе или вечерним отдыхом. В маленькой комнате застеклённый балкон, выходящий в тихий двор. Окна кухни и одной из комнат выходят на солнечную южную сторону, а окна второй комнаты на запад, обеспечивая хорошее естественное освещение в течение дня. Высота потолков 2,5 метра. Квартира полностью готова к проживанию, без каких-либо обременений. В собственности у одного взрослого человека с 2016 года (приватизация), никто не зарегистрирован. Прекрасная транспортная доступность: всего в одной минуте ходьбы находится автобусная остановка с маршрутами 1, 5, 9, 28, 31, 392, а также маршрутными такси 3к, 4к, 13к, которые доставят вас до ВДНХ, станции Подлипки и Мытищ. До станции ''Подлипки-Дачные'' всего 10 минут пешком. Развитая инфраструктура района: в шаговой доступности находятся школы, детские сады, центральный городской парк, спортшкола, бассейн, новая центральная больница и живописный сквер имени академика В.Ф. Уткина. Двор дома зеленый и ухоженный, всегда есть свободные парковочные места. Показ квартиры возможен по предварительной договоренности. Не упустите свой шанс стать обладателем этой замечательной квартиры!