Если цена в объявлении изменится, мы сразу сообщим вам об этом на электронную почту.
Нажимая «Подписаться», вы соглашаетесь с правилами.
продам дом, 1-й Лесной проезд12 000 000 ₽
14 дек
Дата публикации объявления
Обн. 12 янв
Дата обновления объявления
19
Количество просмотров (+ просмотры за сегодня)
Топ
141 176 ₽/м²
Чистая продажа
Термин "Чистая продажа" означает, что в квартире никто не прописан или
есть куда выписаться и вывезти вещи. Это лучший вариант для покупателя.
Вероятность срыва сделки минимальна.
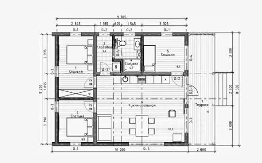
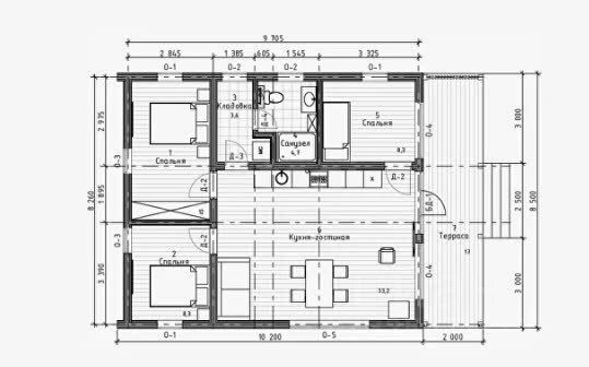
Этажей1
Площадь участка4,11 соток
Общая площадь85 м2
Материал домадерево
ЭлектричествоЕсть
Газоснабжениенет
Номер в базе: 10629608.
В продаже дом для строительства с подрядчиком! Вместе с земельным участком.
Без комиссии для покупателя.
Также одобряем ипотеку через своего ипотечного брокера.
Номер в базе: 10629608.
В продаже дом для строительства с подрядчиком! Вместе с земельным участком.
Без комиссии для покупателя.
Также одобряем ипотеку через своего ипотечного брокера.
Фундамент Свайно-винтовой L=2500 мм, D=108 мм, толщина стенки 3 мм Заполнение пескобетоном Обвязка строенной доской
Теплый контур
НУЛЕВОЙ ПЕРЕКРЫТИЕ Лаги из сухой строганной доски сечением 45 х 195 мм Утепление 200 мм Rockwool Ветрозащитная и пароизоляционная мембраны Ondutis smart
НАРУЖНЫЕ СТЕНЫ Каркас из сухой строганной доски 145 х 45 мм Утепление 150 мм Rockwool Гидроизоляционная мембрана Ondutis smart Пароизоляционная мембрана Ondutis smart
ВНУТРЕННИЕ СТЕНЫ: Каркас из сухой строганной доски 145 х 45 мм Звукоизоляция 100 мм Rockwool Пароизоляционная мембрана Ondutis smart
КРОВЛЯ: Профилированный оцинкованный лист с полимерным покрытием RAL7024 0,45 мм Стропильная система из сухой доски 50 х 200 мм, обрешетка 20 х 100 мм Утепление 200 мм Rockwool Ветрозащитная и пароизоляционная мембраны Ondutiss smart
ПОДШИВ СВЕСОВ: Евроштиль хвойных пород 95 мм, монтаж финишными гвоздями, покраска в 2 слоя финской краской Teknos
КАРКАС: Обработка всего пиломатериала огнебиозащитным составом Сборка каркаса на оцинкованные винтовые гвозди
ФАСАДЫ: Профилированный оцинкованный лист с полимерным покрытием RAL7024 0,45 мм Планкен хвойных пород сорт АБ, заводская окраска финской краской Technos со шлифовкой
ОКНА И БАЛКОННЫЕ ДВЕРИ: 5-ти камерный профиль ПВХ Rehau 60 мм, двухкамерный стеклопакет, затирка швов Стизом с двух сторон Устройство откосов с грунтованием всей поверхности и покраской в 2 слоя лицевой части
ДВЕРИ: Металлическая входная дверь BRAVO или Дверь из пластикового профиля 70 мм уличного открывания, петли, замок, нажимные ручки