Если цена в объявлении изменится, мы сразу сообщим вам об этом на электронную почту.
Нажимая «Подписаться», вы соглашаетесь с правилами.
продам 2-к, Королева проспект, 1б5 600 000 ₽
16 янв
Дата публикации объявления
Обн. 27 янв
Дата обновления объявления
1
Количество просмотров (+ просмотры за сегодня)
133 333 ₽/м²
Чистая продажа
Термин "Чистая продажа" означает, что в квартире никто не прописан или
есть куда выписаться и вывезти вещи. Это лучший вариант для покупателя.
Вероятность срыва сделки минимальна.
Код объекта: 1996905. ЛУЧШИЙ РАЙОН ГОРОДА КОРОЛЁВ!
Внесён аванс до 17 февраля.
Продаётся уютная, тёплая 2-комнатная квартира , расположенная в центре города Королёв по адресу: город Королев, проспект Королёва дом 1 Б.
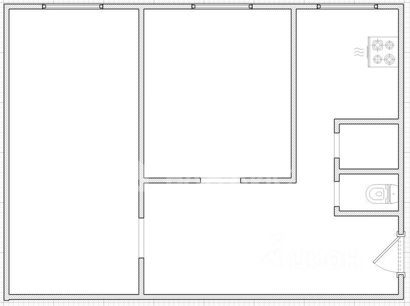
Общая площадь квартиры составляет 42 м2, в том числе жилая площадь 28 м2, площадь кухни 6 м2, раздельный санузел . Изолированные комнаты. Без газовой колонки .Везде установлены окна ПВХ, кондиционер.
Квартира требует ремонта.
Со всех сторон тихий ухоженный зеленый двор.
Квартира расположена на 1 этаже 5-этажного дома. Соседи спокойные адекватные люди.
Во дворе имеется парковка.
В доме был произведен капитальный ремонт, в подъезде чисто, установлены новые пластиковые окна.
Код объекта: 1996905. ЛУЧШИЙ РАЙОН ГОРОДА КОРОЛЁВ!
Внесён аванс до 17 февраля.
Продаётся уютная, тёплая 2-комнатная квартира , расположенная в центре города Королёв по адресу: город Королев, проспект Королёва дом 1 Б.
Общая площадь квартиры составляет 42 м2, в том числе жилая площадь 28 м2, площадь кухни 6 м2, раздельный санузел . Изолированные комнаты. Без газовой колонки .Везде установлены окна ПВХ, кондиционер.
Квартира требует ремонта.
Со всех сторон тихий ухоженный зеленый двор.
Квартира расположена на 1 этаже 5-этажного дома. Соседи спокойные адекватные люди.
Во дворе имеется парковка.
В доме был произведен капитальный ремонт, в подъезде чисто, установлены новые пластиковые окна.
Дом расположен в оживленном районе с развитой инфраструктурой. В 5 минутах ходьбы большая благоустроенная аллея, где высажены редкие каштаны и редкие породы деревьев.
В пешей доступности:, школы, детские сады, аптеки, сетевые магазины, банки, пункты выдачи, кафе и рестораны. Имеется все необходимое для комфортной жизни.
Удобная транспортная доступность: в 7 км от МКАД по Ярославскому шоссе, ж/д ст. ''Болшево'' в пешей доступности, рядом с домом располагается автобусная остановка, до м. ''ВДНХ'' можно добраться на автобусе за 30 минут.
Один взрослый собственник
Полная стоимость в договоре купли-продажи
Без обременений
Быстрый выход на сделку
Свободная продажа.
Дополнительные скидки от наших партнеров. Юридическое сопровождение.
Поможем одобрить ипотеку со сниженной ставкой.
Безопасность сделки обеспечена стандартами работы Гильдии Риэлторов Московской области (ГРМО).
Звоните прямо сейчас, чтобы договориться о просмотре!