1-к, Калинина, 11 Показать на карте
Королев
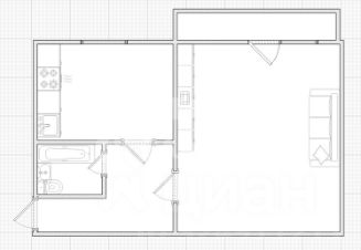
Продаётся 1 - комнатная квартира в строящемся доме (Калинина, 11), срок сдачи: IV-кв. 2024, общей площадью 51.60 кв.м., на 5 этаже.ЖК ''Дом-Мегалит в Королеве'' расположен в историческом центре на пересечении двух центральных улиц — ул. Калинина и ул. Циолковского. Дом расположен в окружении парков и утопает в зелени. Окружающая среднеэтажная застройка подчеркивает дом как высотную доминанту исторической застройки Королёва. Жилая часть дома начинается с пятого этажа, поэтому 95% квартир в проекте — видовые. Квартиры просторные, со свободными планировками, которые каждый может обустроить на свой вкус: запроектировать кухни-гостиные со столовыми зонами, гардеробные, места для систем хранения, детские и спальни. Потолки высотой 2,9 метра делают каждую квартиру еще комфортнее и светлее. На 17 и 18 этажах расположены квартиры со вторым светом. Во всех квартирах глубокие балконы, многие из которых по площади сопоставимы с полноценной комнатой. На балконах есть система дренажа для кондиционеров, благодаря чему фасад здания сохранит свой первоначальный облик.Из подземного паркинга к своей квартире можно подняться на лифте.Дизайн мест общего пользования и благоустройство придомовой территории выполнены по индивидуальному проекту.Предусмотрен безопасный закрытый двор с детской игровой площадкой и спортивной зоной, уютными местами отдыха.Проект уникален по своему наполнению: вся необходимая для комфортной городской жизни инфраструктура будет в составе самого комплекса. Здесь откроется многофункциональный центр с магазинами и сервисами ежедневного спроса. Расположение комплекса отличает полностью сформированная транспортная, торговая и социальная инфраструктура. В шаговой доступности находятся пять детских садов и три школы, а также фитнес-центр. Транспортную доступность обеспечивает развязка с Ярославским шоссе. Дорога до центра Москвы займет 40 минут на автомобиле. Ближайшая ж/д станция располагается в 400 метрах, что позволит добраться до Москвы без пробок за 30-35 минут. Застройщик ЗАО ''Мегалит'' - компания с 33-летним опытом работы. ЗАО ''Мегалит'' входит в перечень системообразующих предприятий Санкт-Петербурга как один из крупнейших застройщиков региона. Девелопер отличается выполнением своих обязательств перед дольщиками и партнерами.Строительство ЖК ''Дом-Мегалит в Королеве'' ведется по 214 ФЗ с проектным финансированием Банка ВТБ.
51 м2
5 / 19 этаж
Монолит
- Показать контакты
- Добавить в избранное
51 м2
5 / 19 этаж
Монолит
10 098 480
195 707 /м2
Новостройка,
дом сдан
дом сдан
