2-к, Космический Квартал ЖК, 1 Показать на карте
Королев
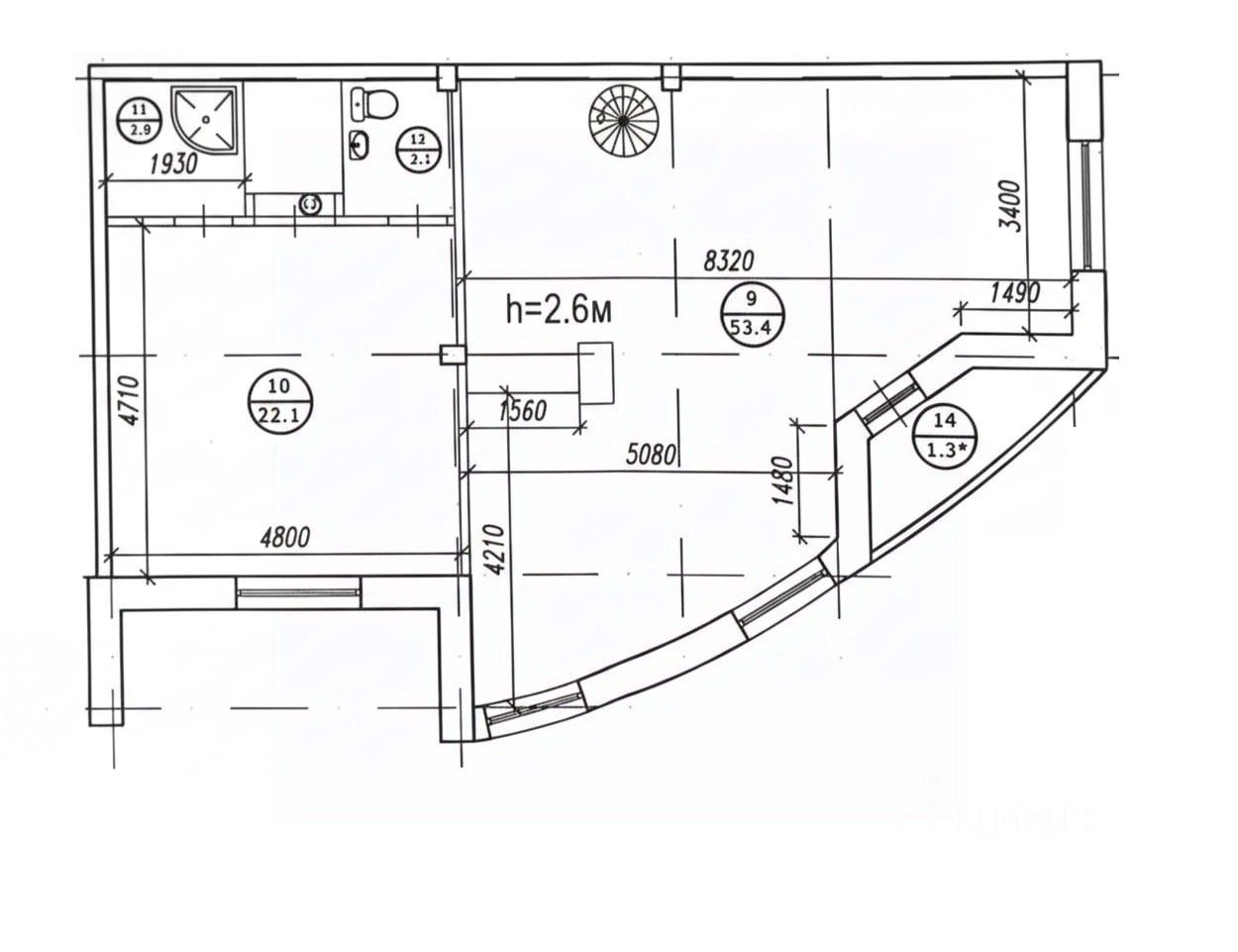
Строим кварталы для жизни с заботой о будущем. Предлагается 2-комнатная квартира комфорт-класса 52,4 кв.м в корпусе 1 на 2 этаже, в ЖК ''Космический Квартал''Квартира без отделки. Доступность опции ''отделка'' и возможность комплектации мебелью и декором уточняйте у застройщика.Приобрести квартиру возможно по специальным акциям от застройщика, с текущими условиями акций можно ознакомиться в блоке ''Акций''.Цена динамическая и может отличаться, уточняйте актуальность у застройщика.''Космический Квартал'' находится в Московской области, в Королеве. В Королеве находятся несколько парков и лесов, а реки Клязьма и Яуза окружают наукоград с двух сторон. Путь до Москвы будет быстрым и удобным: до МКАД — 20 минут на автомобиле, а до ж/д станция Болшево - 8 минут на авто или 20 минут пешком.В проекте предусмотрены собственный детский сад, многоуровневые паркинги, а также магазины, спортзал, ресторан и аптеки на первых этажах домов. Неподалеку от квартала находятся городские гимназии 3 и ''Ковчег'' и лицей 4. ''Космический Квартал'' — это 3 монолитных дома высотой 12-17 этажей. Во внутреннем приватном дворе-парке будут детские и спортивные площадки. А для занятий спортом будут обустроены воркаут-пространства. Все подъезды — с безбарьерным входом. В лобби есть помещения для велосипедов и колясок. На техническом этаже — индивидуальные кладовые для сезонных вещей. Продуманные планировки от небольших студий до просторных 4-комнатных квартир с гардеробной, постирочной и гостевым санузлом. Квартиры сдаются как с отделкой, так и без нее.
52 м2
2 / 12 этаж
Монолит
- Показать контакты
- Добавить в избранное
52 м2
2 / 12 этаж
Монолит
8 735 394
166 706 /м2
Новостройка,
IV-2026
IV-2026
