Таунхаус, Сосновый Бор, 12 ст5 Показать на карте
Королев
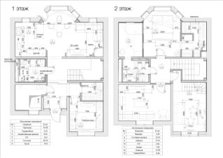
ID 7928. Таунхаус, готовый к реализации ваших дизайнерских идей. Внутри выполнена предчистовая отделка (white box), включающая в себя качественную электропроводку и сантехнику. Расположенный в экологически чистом районе, этот объект предоставляет комфортное проживание в гармонии с природой. Удобное расположение обеспечивает легкий доступ к инфраструктуре города и транспортным развязкам.Инженерные работы выполнены очень качественно из дорогих импортных материалов, всё продумано до мелочей, есть дизайн-проект.Планировка:1 этаж — прихожая, 1 комната, гардеробная, бойлерная, санузел, гостиная с камином, кухня-столовая с выходом в свой зеленый дворик, этаж имеет два отдельных выхода: на улицу и во дворик.2 этаж — коридор, санузел, хамам, две комнаты, гардеробная, двухуровневый кабинет.В доме имеются все центральные коммуникации: магистральный газ, центральное водоснабжение и канализация — всё как в квартире. Перед домом предусмотрены парковочные места.Территория поселка огорожена, свои откатные ворота, открываются с пульта. Участок окружен лесом и расположен в тихом месте, вдали от шумных дорог. Имеется отдельный двор, доступный только для жителей таунхауса. Приятные соседи. Удобный выезд и заезд на Ярославское шоссе. В семи минутах ходьбы находятся железнодорожные станции Фабрика 1 Мая и Сосновый Бор.Таунхаус переведен в статус блокированной застройки, нет управляющей компании, платите только по счетчикам. Прямые договоры с ресурсоснабжающими организациями.
149 м2
2 этажа
- Показать контакты
- Добавить в избранное
149 м2
2 этажа
18 300 000
122 326 /м2
